ベランダウレタン塗膜防水 出窓上防水 庇上防水 パラペット笠木防水 遮熱フッ素トップコート+高強度ウレタン/通気緩衝工法AVシート仕様(一部密着工事)板橋区大山西町A様


| 屋上・陸屋根 | ![]() |
板橋区大山西町 | ![]() |
RC造 | ![]() |
17年 |
|---|---|---|---|---|---|---|
![]() |
不明 | ![]() |
約260万円 | ![]() |
約2ヶ月 | |
![]() |
||||||
![]() |
ウレタン防水通気緩衝工法/AV工法/厚さ3㎜/遮熱フッ素トップコート/高強度防水/改修用ドレン設置 | |||||
![]() |
【工事詳細】 ◆屋根防水 高圧洗浄 入隅シーリング ノンブリードウレタン ウレタン防水/平場/遮熱フッ素TP+高強度 密着/補強クロス/3㎜ ウレタン防水/立上り/遮熱フッ素TP+高強度 密着/補強クロス/3㎜ 改修ドレン設置 ストレーナー共 ◆屋上防水(3Fバルコニー) 高圧洗浄 伸縮目地撤去打設 ノンブリードウレタン 入隅シーリング ノンブリードウレタン 壁取合いシーリング ノンブリードウレタン ウレタン防水/平場/遮熱フッ素TP+高強度 通気緩衝/AV/3㎜ ウレタン防水/立上り/遮熱フッ素TP+高強度 密着/補強クロス/3㎜ 脱気筒取付 ステンレス製 改修ドレン設置 ストレーナー共 ◆2Fバルコニー防水 高圧洗浄 既存防水層脆弱部撤去・補修 入隅シーリング ノンブリードウレタン ウレタン防水/平場/遮熱フッ素TP+高強度 密着/補強クロス/3㎜ ウレタン防水/立上り/遮熱フッ素TP+高強度 密着/補強クロス/3㎜ ドレン補修 タールエポ・シール処理 ◆2Fテラス防水 高強度仕様 高圧洗浄 階段ノンスリップ金物撤去処分 ビス止め部補修共 ノンスリップシート貼り 既存防水層脆弱部撤去・補修 ウレタン防水/平場/フッ素TP+高強度 密着/補強クロスなし/2㎜ ウレタン防水/階段蹴込/フッ素TP+高強度 密着/補強クロスなし/2㎜ 床タイルシート脱着 植木移動 ◆各階庇防水 高圧洗浄 下地調整 カチオン型モルタル塗り ウレタン防水/平場/遮熱フッ素TP+高強度 密着/補強クロス無し/2㎜ ドレン補修 タールエポ・シール処理 ◆車庫門扉 天端防水 高圧洗浄 ウレタン防水/平場/遮熱フッ素TP 密着/2㎜ |
|||||
【施工内容の説明】
※高圧洗浄は、防水面に付着している汚れを10~15Mps程度の水圧で洗う作業です。
※既存防水層脆弱部撤去・補修は、経年劣化により傷んでいる防水面を部分的に撤去する作業です。
※ カチオン型モルタル塗りは、撤去した脆弱部の下地補修をする作業です。
※入隅シーリング ノンブリードウレタンは、平場と立上の接続部が下地の動きにより防水層が切れない為の作業です。
※改修用ドレン設置は、既存ドレンの上にかぶせ設置する改修専用ドレンで雨漏りを防ぎます。
※伸縮目地撤去シール処理は、新規防水層が下地の保護コンクリートの動きにより切れることを防ぐ作業です。
工事内容詳細
施工前 屋上全景
屋上は過去にウレタン防水改修をした履歴がありますが、かなり年数が経過しています。
表層のトップコートが劣化してウレタン防水層の表層剥離が発生し変色している部分があります。
施工前 バルコニー全景
下階のルーフバルコニーは保護コンクリートに黒い伸縮目地があるので、防水改修の履歴はありません。
保護コンクリート層はアスファルト防水層の上に厚さ80㎜程度のコンクリートで2m間隔に設置してある伸縮目地に圧縮変形が発生します。
施工前 バルコニー全景
下階に居室があるルーフバルコ二ーです。
ルーフバルコニーの保護コンクリートは面積が小さいので伸縮目地が入っていませんが表層には小さなクラックが発生します。
施工前 庇全景
施工前のひさしです。劣化しところどころ剥がれています。
現時点では簡易モルタル防水ですが、改修工事では屋上と同様に完全防水をする必要があります。
施工前 庇全景
庇部分でウレタン防水やシート防水となっています。
同様に完全防水改修をする必要があります。
施工前 階段全景
外階については、RC躯体に簡易モルタル防水をなっています。
下部は室内ではなく外部ですが、躯体内部に水分の侵入を防ぐために完全防水施工とします。
施工前 ドレン周辺
ドレン周りにはコケが発生し内部は泥だまりがあります。
ドレン部はストレーナー(格子)が付いているので内部は見えにくいですが、防水層・ドレン・雨樋の3つの材料が接続されています。
接続ジョイント部は経年劣化により徐々防水性能が低下します。
劣化部に改修用ドレンをカバー設置することで防水性能が確保されます。
施工前 ドレン周辺
ドレン部分に土が詰まっています。
低層建物はどうしても屋上まで土ぼこりが舞い上がりドレン周りに土が詰まる傾向にあります。
定期的に清掃をするメンテナンスをするとドレン周囲の劣化を防ぐことが出来ます。
施工前 テラス全景
屋上のドレン周辺やテラスには植木鉢や人工芝が敷いてあり仮撤去をしてから防水施工をする必要があります。
既存撤去作業
人工芝の下は保護コンクリートとなっています。
植栽の枯れ葉もドレン周りが詰まり劣化の原因になります。
既存撤去作業
一度、人工芝を撤去してから防水工事をします。
既存撤去作業
2階テラスの人口芝と植木鉢の仮撤去が完了しました。
人工芝に保護されていたので、保護コンクリートの表面に劣化はありません。
材料荷姿(ウレタン・副資材)
足場にあるのは防水材料です。
AGCポリマー建材のサラセーヌを使用します。
『サラセーヌ」ウレタン塗膜防水は、伸長性、耐久性に優れたウレタンゴムの特性を生かした高機能な防水材料で建物の屋上やバルコニーを守り長寿命化します。
材料荷姿(ウレタン・副資材)
今回使用する防水材料は2液タイプのウレタン防水です。
主材と硬化剤を混合することで硬化し液状から固体のゴム状の防水層となります。
材料荷姿(ウレタン・副資材)
一旦、足場上に仮置きをし、下地が完了したら各箇所に配ります。
洗浄作業(高圧・ケレン)
屋上の以前にウレタン防水をケレン撤去をしています。
劣化したウレタン材を撤去しないと密着性が確保できません。
洗浄作業(高圧・ケレン)
撤去しない部分で表面が劣化している部分はワイヤーブラシで劣化表面を削ります。
既存防水層の生かせる部分は生かして防水改修をします。
洗浄作業(高圧・ケレン)
屋上は劣化したウレタン防水層の劣化部分を撤去し表層はケレン清掃ました。
洗浄作業(高圧・ケレン)
外部のRC階段は高圧洗浄で泥とコケ汚れを洗い落とします。
洗浄作業(高圧・ケレン)
防水面は平面なので汚れが付着しやすく、完全に汚れを除去してから防雨水を行うことは防水材の密着性を高めるために不可欠な作業です。
防水施工を行う上で大切な工程の1つが高圧洗浄です。
洗浄作業(高圧・ケレン)
コンクリート面に付着している泥汚れをきれいに洗い流します。
洗浄作業(高圧・ケレン)
ベランダのコンクリート部も高圧洗浄し付着している泥汚れをきれいに洗い流します。
洗浄作業(高圧・ケレン)
3階ルーフバルコニーも 防水面は平面なので汚れが付着しやすく、完全に汚れを除去してから防雨水を行うことは防水材の密着性を高めるために不可欠な作業です。
コンクリート面に付着している泥汚れをきれいに洗い流します。
階段 ノンスリップ撤去
階段のノンスリップ金物を撤去し防水層に隙間や未施工部が無いようにします。
伸縮目地撤去
伸縮目地の撤去作業です。
目地上部のプラスチックカバーを撤去してから内部の伸縮スポンジ材を撤去します。
伸縮目地撤去
伸縮目地は押さえ保護コンクリートの動きを緩衝する目的で厚さ80㎜程度の保護コンクリート層を下部の防水層まで貫通し設置されている伸縮スポンジに塩ビカバーが付けれています。
伸縮目地作業
撤去した伸縮目地部の溝内にスチロール性のバックアップ材を挿入した上にプライマーを塗ってシーリングを打ちます。
伸縮目地作業
モルタル埋めではなくシーリングを充填することで伸縮性が確保され防水層が切れることを防ぎます。
伸縮目地作業
伸縮目地にシール打ちをして、補強クロス貼り+シール打ちヘラ均しをして平滑にします。
下地処理カチオンモルタル
保護コンクリート面はカチオンモルタルを塗って下地を整えます。
カチオンモルタルには強力な接着効果があり撤去した下地補修材としてとても最適です。
プライマー塗り
ルーフバルコニーも同様に伸縮目地を撤去しバックアップ材を入れてプライマーを塗ります。
プライマー塗り
プライマーは密着性を高める接着剤のような役割があります。
防水材だけでは密着力が弱く、下地面にそのまま防水材を塗ったとしても、すぐに剥がれてしまいます。
プライマーを使い密着性が高めることで、防水材が剥がれにくくなり、防水本来の性能や耐久性を発揮します。
プライマー塗り
バルコニーも同様にプライマーを塗って接着性を確保します。
プライマー塗り
屋上の既存ウレタン防水層上にプライマーを塗ります。
プライマーを使い密着性が高めることで、防水材が剥がれにくくなり、防水本来の性能や耐久性を発揮します。
補強クロス貼り
補強クロス貼り密着工法とすることでウレタン防水層の強度を高めます。
プライマー塗り
プライマーは均一に規定塗布量ムラ無く塗ることが大切です。
プライマー塗り
門上部のプライマー塗りをします。
プライマーを使い密着性が高めることで、防水材が剥がれにくくなり、防水本来の性能や耐久性を発揮します。
プライマー塗り
階段床についても同様にプライマーを塗ります。
プライマー塗り
庇部分にもプライマーを塗ります。
プライマー塗り
他の庇部分も同様にプライマーをムラ無く塗ります。
プライマー塗り
出窓上部にもプライマーを塗って防水をします。
通気緩衝シート貼り
【3階ルーフ防水の工事仕様】
ウレタン防水/平場/遮熱フッ素TP+高強度 通気緩衝/AV/3㎜
ウレタン防水/立上り/遮熱フッ素TP+高強度 密着/補強クロス/3㎜
専用プライマー塗り後に、1層目の通気緩衝シート(AVシート)貼り作業です。
今回使用する通気シートはフェルト製に5mm程度の孔が空けられています。
改修ドレン下地モルタル
排水ドレン部分に改修用ドレンを設置します。
改修用ドレンは既設の鉄鋳物製のルーフドレンの上から被せて設置する防水改修専用ドレンで鉛製プレートに排水ホースが設置されています。
改修ドレン下地モルタル
改修ドレンの鉛プレートはしっかりとあて木の上からハンマーで打撃して密着させます。
脱気筒設置
脱気筒は通気緩衝工法に設置する通気装置でステンレス製のプレート+筒状掲揚となっています。
立上り端部補強クロス入れ
伸縮の影響を受けやすい立上りには補強クロスを貼ります。
立上り端部補強クロス入れ
注意点としてはクロス材は平らな素材に対して立ち上がり端末な出隅入隅と形状が変形しているので、しっかりとウレタン材で接着させないと浮き部が空洞となります。
しっかりと密着させることが大切になります。
立上り端部補強クロス入れ
立上りや端末は補強クロスを貼ってその上からウレタンを塗ります。
階段 一層目 ウレタン主材塗り
立上りや端末は補強クロスを貼ってその上からウレタン主材を塗ります。
屋上 平場一層目 ウレタン主材塗り
1層目のウレタン塗膜を塗ります。
防水塗膜は2回重ねで塗ります。
ウレタン防水主材は2回塗りで規定塗布量を塗ります。
1層目で1.5mm+2層目で1.5mmの計3mmの塗膜厚さを塗ります。
不陸凹凸なく均一にローラー塗りとします。
材料は平場用のレベリングタイプを使用しますが平滑に均すことが大切になります。
バルコニー 平場一層目 ウレタン主材塗り
ブルーの通気シート上には専用の目止めウレタン材を塗ってから1層目のウレタン防水主材を塗ります。
バルコニー 平場一層目 ウレタン主材塗り
バルコーなどの密着工法の部分は直接1層目のウレタン防水主材を塗ります。
車庫門扉一層目 ウレタン主材塗り
門屋根も同様に1層目のウレタン主材を塗ります。
ひさし一層目 ウレタン主材塗り
ひさしも同様に1層目のウレタン主材を塗ります。
ひさし一層目 ウレタン主材塗り
他のひさしも1層目のウレタン防水主材を塗ります。
屋上 立上一層目 ウレタン主材塗り
屋上の立上り部の1層目のウレタン防水主材を塗ります。
バルコニー 立上一層目 ウレタン主材塗り
【バルコニー防水仕様】
ウレタン防水/平場/遮熱フッ素TP+高強度 密着/補強クロス/3㎜
ウレタン防水/立上り/遮熱フッ素TP+高強度 密着/補強クロス/3㎜
立上りには粘性の異なる立上り専用材料を塗って塗膜厚さを確保します。
バルコニー 立上二層目 ウレタン主材塗り
バルコニー立上り部の2層目のウレタン防水主材を塗ります。
ひさし二層目 ウレタン主材塗り
他のひさしの2層目のウレタン防水主材を塗ります。
ウレタン防水主材は2回塗りで規定塗布量を塗ります。
2層目で+1mmの計2mmの塗膜厚さを塗ります。
ひさし二層目 ウレタン主材塗り
ひさしの天端も2層目のウレタン防水材を塗ります。
立上りを塗ってから平場を全体に2層目のウレタン防水主材を塗ります。
ひさし二層目 ウレタン主材塗り
ウレタン防水主材は2回塗りで規定塗布量を塗ります。
2層目で+1mmの計2mmの塗膜厚さを塗ります。
階段二層目 ウレタン主材塗り
階段部分も同様に2層目のウレタンを塗ります。
ノンスリップ金物が無いことで防水層が一体化します。
テラス二層目 ウレタン主材塗り
不陸凹凸なく均一にコテ塗りとします。
材料は平場用のレベリングタイプを使用しますが平滑に均すことが大切になります。
屋上 平場二層目 ウレタン主材塗り
ウレタン防水塗膜は2回重ねで塗ります。
立上りを塗ったら、屋上全体に2層目のウレタン防水主材を塗ります。
ウレタン防水主材は2回塗りで規定塗布量を塗ります。
バルコニー 平場二層目 ウレタン主材塗り
ルーフバルコニーは、1層目で1.5mm+2層目で1.5mmの計3mmの塗膜厚さを塗ります。
不陸凹凸なく均一にローラー塗りとします。 材料は平場用のレベリングタイプを使用しますが平滑に均すことが大切になります。
バルコニー 平場二層目 ウレタン主材塗り
ひさしと階段の天端も2層目のウレタン防水材を塗ります。
立上りを塗ってから平場を全体に2層目のウレタン防水主材を塗ります。
階段 トップコート ローラー塗り
ウレタン防水主材は2回塗りで規定塗布量を塗ります。
2層目で+1mmの計2mmの塗膜厚さを塗ります。
テラス トップコート ローラー塗り
ウレタン主材を不陸凹凸なく均一にコテ塗りとし平場用のレベリングタイプを使用し平滑に均した上に最終工程のトップコート塗りになります。
車庫門扉 トップコート ローラー塗り
門塀上部も同様にトップコートをムラ無く均一に塗ります。
ひさし トップコート ローラー塗り
トップコートはウレタン防水層を自然環境の風雨や太陽光の熱や紫外線から保護をする効果があります。
ひさし トップコート ローラー塗り
他のひさし部も同様にトップコートを塗ります。
ひさし トップコート ローラー塗り
ウレタン防水主材を規定塗布量を塗ったあとにトップコート塗りをします。
バルコニー トップコート ローラー塗り
ウレタン防水主材を規定塗布量を塗ったあとにトップコート塗って完成です。
バルコニー トップコート ローラー塗り
バルコニーもトップコート塗って完成です。
階段 ノンスリップ取付・トップコート完了
ウレタン防水主材を規定塗布量を塗ったあとにトップコート塗りが完了しました。
トップコートはウレタン防水層を自然環境の風雨や太陽光の熱や紫外線から保護をする効果があります。
改修用ドレン取付完了
ドレン部はエポタール塗装で仕上げます。
改修用ストレーナー取付完了
改修用ドレンを設置した部分には、防水施工が完了後に改修用ストレーナーを説地します。
テラス トップコート完了
ウレタン防水主材を規定塗布量を塗ったあとにトップコート塗りが完了しました。
車庫門扉 トップコート完了
門屋根もウレタン防水主材を規定塗布量を塗ったあとにトップコート塗りが完了しました。
庇 トップコート完了
トップコートはウレタン防水層を自然環境の風雨や太陽光の熱や紫外線から保護をする効果があります。
庇 トップコート完了
その他のひさしもトップコート塗りが完了しました。
庇 トップコート完了
トップコート塗りが完了しました。
屋上 トップコート完了
屋上もウレタン防水主材を規定塗布量を塗ったあとにトップコート塗りが完了しました。
屋上 トップコート完了
屋上もウレタン防水主材を規定塗布量を塗ったあとにトップコート塗りが完了しました。
ルーフバルコニー トップコート完了
ルーフバルコニーもウレタン防水主材を規定塗布量を塗ったあとにトップコート塗りが完了しました。
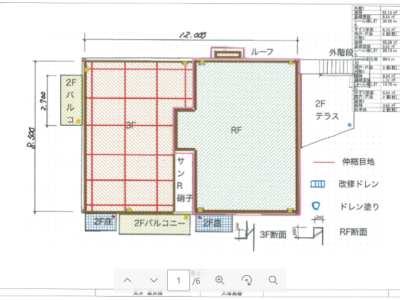
計測図
ウレタン防水主材を規定塗布量を塗ったあとにトップコート塗りが完了しました。
参考略図は後のメンテナンスのチェックにご利用できます。
調査結果と報告書を提出
防水層の診断結果を弊社の調査ガイドラインに沿って、防水層を調査し報告書と状況写真をご提出します。
防水層の劣化状況が正確に解りメンテナンスの必要性の有無が判断できます。
工事完了報告書を提出
お引渡しの後に工事完了報告書と工事保証書を提出させて頂きます。
工事後も安心してお住まい頂けますよう保証内容や細部までしっかりと施工をした状況が確認できます。
お引渡し後でも何か気になることが御座いましたら、いつでもお気軽にご連絡ください。
高強度ウレタン防水材のメカニズム
高強度形防水材と高伸長形防水材の組み合わせが下地のひび割れ(クラック)に追随し、防水層の割れや破断を防ぎます。
下地に動き(挙動)が発生する防水改修にも高強度形ウレタン防水材を使用することで長期的に防水性能を維持します。
高伸縮形防水材の性能比較表
高伸縮形防水材は下地のひび割れが50mmでも破断しない高伸縮性能があります。
躯体の劣化によるクラックの発生リスクがある下地へのウレタン防水材として最適です。
雨量計算
流量は流積×流速で求められる水力の単位です。
計算は断面積(ドレン径から格子による減面積)と流速の関係を使って計算します。
ベランダ・ルーフバルコニーの違い
ベランダ・バルコニー
室外に張り出した屋根がある
手すり付きの歩行可能なスペース
2階以上の室外に張り出した
屋根のない手すりがあるスペース
ルーフバルコニー
下の階が室内となっている屋根(ルーフ)を上の階の庭として使っているもので、通常のバルコニーよりも面積が広い。
屋上防水 動画セミナー
3つの特典プレゼント
・動画の解説資料
・屋上防水の教科書
・屋上防水スタディブック
外壁改修 動画セミナー
3つの特典プレゼント
・動画の解説資料
・外壁改修の教科書
・外壁改修スタディブック































